Description
Sanremo - Première colline.
Dans un quartier résidentiel situé à environ 3 km du centre de Sanremo, au cœur de la nature et de la campagne, se trouve une propriété rare à la vente, composée d’une maison existante de 42 m², d’un terrain d’environ 2 800 m² et d’un projet approuvé de démolition et reconstruction pour la réalisation d’une villa contemporaine de 100 m² habitables.
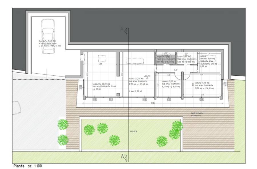
Le projet comprend une entrée sur un vaste séjour avec cuisine américaine, deux salles de bains, un dressing, une spacieuse suite parentale, une deuxième chambre et un garage attenant et communicant de 35,30 m².
Autour de la future villa, le terrain d’environ 2 800 m² est composé de vigne, d’oliviers, de deux puits artésiens, d’un réservoir d’eau et d’une source. L’accès à la propriété se fait par une allée bordée d’une pergola de vigne d’environ 40 mètres de long.
Cette propriété représente une opportunité rare d’acquérir une maison existante avec terrain et projet de villa déjà approuvé, dans un cadre paisible et verdoyant à quelques minutes du centre de Sanremo et de la mer.
Toutes les images sont données à titre informatif et explicatif, elles ne sont pas contractuelles. Le prix indiqué est hors charges et dépôts de garantie déjà versés.
Données de propriété
- 2800 mq

- En attente de certification

caractéristiques
- Accès voiture
- Restanques
- Vue Verdure
- Vue dégagée
- Belle exposition
- Au calme







Demande d'information